Chargement...

Le mur de soutènement avec jardinières et marches de Luke

Luke avait besoin d’une structure sur mesure pour connecter l’espace entre sa terrasse et son gazon pour complètement transformer son jardin.  Plutôt que de construire seulement un ensemble de marches standard, il était possible d’intégrer des jardinières pour créer un passage agréable et plein de couleurs entre les deux espaces. Il était important que la structure tienne exactement dans l’espace disponible sans laisser d’espace de chaque côté.

Après avoir terminé une aile à sa maison et ajouté une terrasse à l’arrière de celle-ci, Luke s’est retrouvé avec une différence importante de 1,3 m entre le haut et le bas de son jardin. C’était par ailleurs un espace un peu difficile avec peu de marge de manœuvre de chaque côté de la terrasse. Le reste du jardin de Luke était en gazon, sans aucune zone plantée.

Luke avait l’idée de construire un ensemble de marches avec des jardinières étagées de chaque côté, pour faire office de mur de soutènement. Cela créerait deux niveaux différents pour les plantations. Il avait au départ pensé utiliser des traverses de chemin de fer à construire lui-même, cependant, la configuration pentue de son jardin posait de sérieux problèmes techniques pour assurer sa stabilité (sans parler de toutes les découpes à faire sur site !). Luke a également demandé un devis à un artisan local afin de construire une structure en briques dans l’espace, mais cela s’est avéré trop coûteux pour une finition qui manquerait un peu de naturel.

Planification du jardin

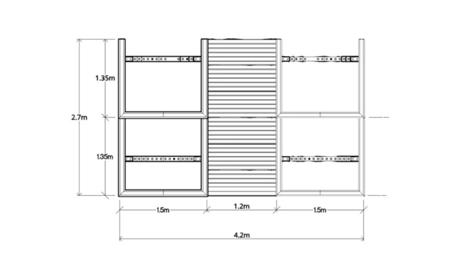
Après avoir envisagé d’utiliser des traverses de chemin de fer et un mur en briques, Luke n’était pas convaincu par ces solutions et il est allé en ligne pour trouver des idées de mur de soutènement et de marches. Après être tombé sur WoodBlocX, Luke s’est dit qu’un mur de soutènement avec des marches et des jardinières pouvait facilement être créé avec notre système de construction unique en blocs de bois. Il nous a envoyé des dimensions, des dessins de ses idées et des photos de son jardin via notre service de conception gratuit.

Notre équipe experte de concepteurs WoodBlocX s’est mise au travail afin de créer une structure sur mesure intégrant la pente du jardin de Luke et qui pourrait être installée sans retirer trop de terre : la partie supérieure de la structure allait également être de niveau avec la terrasse existante. Le design final comprenait deux grandes jardinières étagées (pour retenir la terre) de chaque côté de six marches centrales. Les jardinières en haut de la structure ont utilisé les fondations existantes de la propriété pour diminuer la quantité de WoodBlocX nécessaire, ce qui a aidé à réduire le coût global du projet.

Préparation et montage

Avant de construire, il était essentiel que Luke prépare l’espace pour sa configuration. Même si la structure est intelligemment conçue pour absorber la pente du jardin, Luke a dû creuser un espace pour les contreforts internes de façon à ce que ces derniers puissent être installés à plat et de niveau avec la terre. Les contreforts font office « d’ancrage mort », ce qui aide à fixer l’intégralité de la structure en toute sécurité dans le sol. Regardez cette vidéo pour voir le processus de préparation du sol !

La partie inférieure de la pente devait aussi être mise de niveau pour que la toute première rangée de WoodBlocX puisse être correctement installée. En creusant, Luke a découvert sa canalisation d’eaux usées. Une découpe sur mesure a été faite sur un des blocs afin qu’il chevauche le tuyau, sans avoir à bouger celui-ci sous le mur de soutènement.

Jardin terminé

La structure WoodBlocX terminée est un exemple fabuleux de ce que nos concepteurs sont en mesure de réaliser pour remplir un espace à la perfection sans avoir à se rendre dans votre jardin ! Multifonctionnel, le design de Luke retient la terre dans la pente, crée un accès par des marches vers la partie inférieure du jardin et fournit un large espace de plantation pour faire pousser une grande variété d’arbustes et de plantes. Le choix de rebord traditionnel donne à l’ensemble une apparence très élégante. Et cerise sur le gâteau, étant donné que le bois WoodBlocX est traité par autoclave, la structure est facile à entretenir et durera de nombreuses années ! Regardez cette vidéo pour voir Luke en train de monter sa structure.

Dans les jardinières carrées, Luke a planté diverses plantes d’ornement choisies pour apporter de la couleur toute l’année. Grâce aux marches centrales, l’espace de plantation est facilement accessible pour désherber et jardiner.

Construire avec WoodBlocX


Voici les commentaires de Luke : « Au départ j’étais un peu intimidé à l’idée de construire la structure. Toutefois, après avoir lu les instructions, qui me guidaient rangée par rangée, j’ai été agréablement surpris ! Une fois que j’ai eu placé la première et la seconde rangée, j’ai construit la structure très rapidement. Les blocs en bois étaient faciles à manipuler et les goujons s’enfoncent sans problème. Les contreforts internes maintiennent la structure en place et font que les jardinières sont super solides. J’ai construit le tout en un peu moins d’une semaine, en travaillant les soirs après le travail et le week-end. Globalement, je suis très satisfait de la structure terminée. L’apparence naturelle du bois se marie parfaitement à ma maison et donne une cohérence entre le gazon et la nouvelle terrasse. Maintenant que j’ai mis des plantes, j’ai hâte de voir comment la verdure va adoucir l’espace. »


Concevoir un mur de soutènement à plusieurs niveaux

Vous pouvez utiliser WoodBlocX pour retenir la terre tout en créant un espace de plantation. Les murs de soutènement sont faciles à construire, sans aucun besoin d’outils électriques. Nos BlocX en bois sont le produit idéal pour les jardins pentus où d'autres solutions s'avèrent trop coûteuses.